
Benjamin Lake
About us
I have a large umbrella consisting of over 10 people with many different services to offer, so even if it's not listed here, please ask :) On a typical single family home job I would charge $0.40 per square foot for each trade, or $50 an hour. I will estimate the projected hours for a job against the $0.40 per square foot and I will present you with the lower number. My overhead is almost non-existent, so I feel confident in saying that my prices should be the most inexpensive around for my services. If you have a low cost bid available to you, please let me know and I will try to beat it!
Business highlights
Services we offer
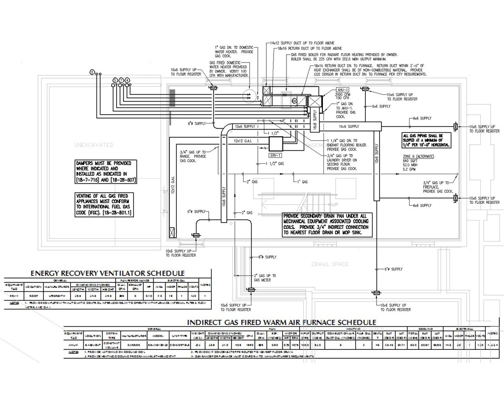
Production of architectural engineering documents (Mechanical HVAC, Plumbing, Electrical, and Fire Sprinkler drawings) for permit, bid, and construction use.
Services we don't offer
Mechanical or Electrical installation. I do not install HVAC, plumbing, or electrical. I only provide the permit and bid documents required for renovations, or new construction. Keep in mind the the City of Chicago requires complete permit documents for even the smallest renovations or new construction projects. Their code reviewers are sticklers, but I have almost 20 years of experience in dealing with them as well as code officials and reviewers for the surrounding suburbs and states.
Amenities
Free Estimates
Yes
Accepted Payment Methods
- PayPal
- Financing Available
- Check
- 3

Assorted photos uploaded by Benjamin Lake
Licensing
State Contractor License Requirements
All statements concerning insurance, licenses, and bonds are informational only, and are self-reported. Since insurance, licenses and bonds can expire and can be cancelled, homeowners should always check such information for themselves. To find more licensing information for your state, visit our Find Licensing Requirements page.
*Contact business to see additional licenses.